1
$159,000 Sale
Listed 326 days ago
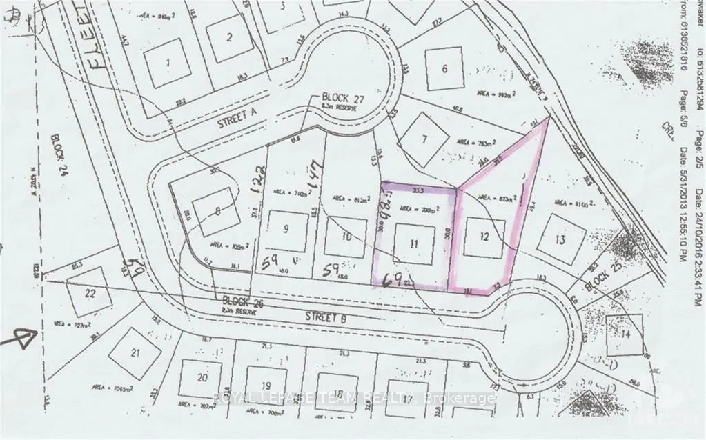
Lot 12 FLETT Street, #12
· 0
· 0
· 0
· -
Listing History
Buy/Sell/Terminated/Expired listing history for Lot 12 FLETT Street, #12
Key Facts
Key facts for Lot 12 FLETT Street, #12
Property Type
Lots/Land, Unknown
Parking
Unknown , 0 parking
MLS #
X10425647
Size
-
Basement
Unknown
Listed on
2024-11-15
Lot size
67 x 0.0
Tax
$486 /yr
Days on Market
327
Approximate Age
-
Maintenance Fee
-
Description
OPPORTUNITY TO OWN A BUILDING LOT IN A VERY SOUGHT AFTER SUBDIVISION. COVENANTS IN PLACE. RIVER VIEW AND WATER ACCESS. CLOSE TO ALL MAJOR HIGHWAYS, 1 HOUR TO OTTAWA. 1.5 HOURS TO MONTREAL.
Similar Properties (No results)
Courtesy of: ROYAL LEPAGE TEAM REALTY