1
$149,000 Sale
Listed 327 days ago
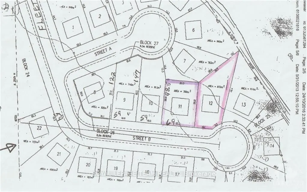
Lot 11 FLETT Street, #11
· 0
· 0
· 0
· -
Listing History
Buy/Sell/Terminated/Expired listing history for Lot 11 FLETT Street, #11
Key Facts
Key facts for Lot 11 FLETT Street, #11
Property Type
Lots/Land, Unknown
Parking
Unknown , 0 parking
MLS #
X10425114
Size
-
Basement
Unknown
Listed on
2024-11-14
Lot size
72 x 86.19
Tax
$433 /yr
Days on Market
328
Approximate Age
-
Maintenance Fee
-
Description
WONDERFUL SUBDIVISION WITH EXTRAORDINARILY BEAUTIFUL HOMES. COVENANTS IN PLACE ( IN DOCUMENTS). PERFECT SITE FOR YOUR NEW HOME BUILD. WATER ACCESS TO DEEP WATER OF THE GALOP CANAL SYSTEM AND THE ST. LAWRENCE SEAWAY.
Similar Properties (No results)
Courtesy of: ROYAL LEPAGE TEAM REALTY